
| カテゴリ | 控えアンカー式鋼製擁壁 |
|---|---|
| 用 途 | 道路擁壁工、土留工 |
| キーワード | 路側擁壁、法面法尻擁壁、災害復旧 |
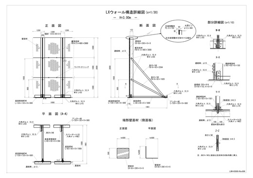
LXウォールは、縦支柱材とエキスパンドメタルからなる盛土前面の直壁を底面梁材と斜タイ材、アンカー材で支持する控えアンカー式の鋼製L型擁壁です。
支柱は1.0m間隔に設置され、エキスパンドメタル壁面材を延長方向に連接して固定することで、連続した壁面を構築しています。
適用高さは、高さH=1.0mから0.5mきざみで5.0mまでとし、各高さごとに標準設計が完備されています。
コンクリート擁壁と違い自在性があり地盤の変化や沈下に追随しやすいため、比較的よくない地盤でも適用が可能です。


プレキャストL型にはない施工性
現場で組立てできる鋼製L型擁壁。構成する部材が軽量のため、人力による運搬・組立てが可能。大型重機やクレーンが不要なため、設置場所に制限されることなく施工が可能です。
標準化により設計・積算が容易
標準設計が完備されており、補強土壁のような手間のかかる設計作業を必要としません。また、治山林道必携に歩掛が掲載されており積算作業も容易なことから、災害時復旧対策、その後の設計変更にも迅速に対応ができます。
工期短縮の実現
基礎コンクリートや均しコンクリートを必要としないため養生期間が無用となり、資材製作・納入までの期間も短くてよく工期短縮が実現できます。災害復旧に迅速な対応が可能です。
生産性向上とコスト縮減
設計・施工の効率化が図れるとともに、同じ直壁タイプのプレキャストコンクリート擁壁(PCL)と比べて直接工事費で20%〜30%程度のコスト縮減が可能です。

砂防堰堤の附帯施設である護岸工、流路工及び管理用道路等の土留め・擁壁工等にKYOSEIの擁壁商品群が活用された事例をご紹介します。経済性と施工性の良さが評価されています。

理にかなったスリムでシンプルな構造が受け入れられ、開発から25年、皆様のご愛顧を賜り施工擁壁面積40万㎡を達成することができました。





コンクリートを一切使わない合理的な控えアンカー式鋼製L型擁壁リーフ

災害復旧で施工された「LXウォール」についてのニュースレター

災害復旧に迅速に対応できるLXウォールの災害復旧対策事例集

ダウンロードにはログインが必要です

斜面の安定を図るための山腹工基礎、山腹緑化工の災害復旧対策事例集

KYOSEI独自の補強材を使用した補強土壁や鋼製L型擁壁などを紹介した冊子